The dining room of Clay House, Woollahra Terrace renovation by Muci Architects. The Eastern Edition table has a Jungmo Kwon pendant above, a timber window beside and cream bricks behind.

CLAY HOUSE

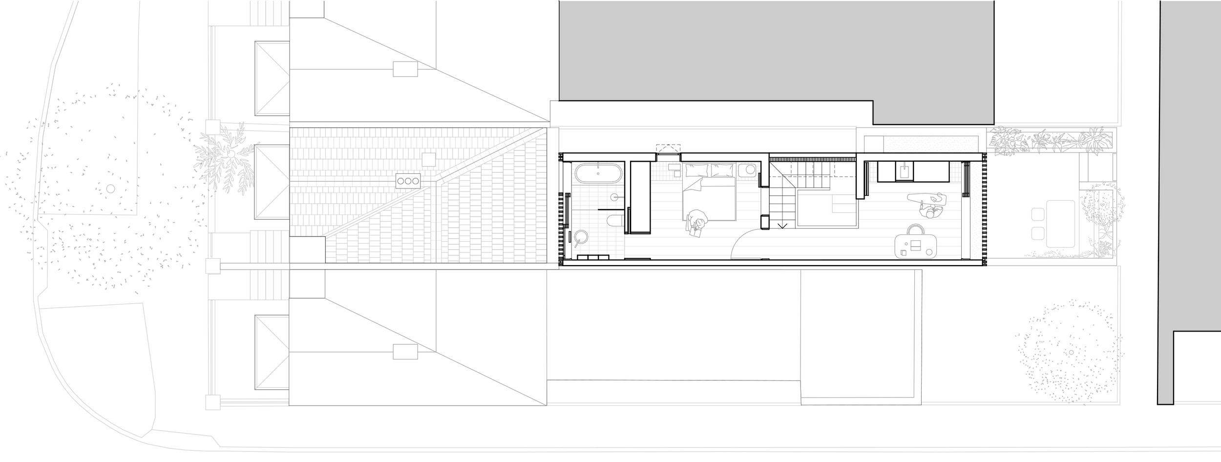
Clay House is the transformation of a narrow, late-Victorian terrace in Woollahra, addressing the challenge of bringing light, air and calm into a compact inner-city site just over 4.6 metres wide.

The project is a built manifesto for our clients and their company, LOHAS, suppliers of a wide range of ceramic building materials. Designed for their young family, the brief called for spaces that feel solid, calm and connected to gardens. Instead of collapsing the living areas into a single open plan, as is typical of such renovations, the house unfolds as a sequence of connected rooms, offering a variety of spaces that ultimately make the house feel more generous.

The design is organised as two compact ‘towers’ separated by a central void where a strip of skylights draws natural light deep into the plan and a sculptural, timber clad stair leads to the master bedroom, study, and laundry at the upper level.

Cream roman bricks were chosen as the anchoring element for the material palette for their ability to reflect light into the interior. Closely matched mortar gives the walls a calm, monolithic presence when viewed at a distance, with texture of individual bricks revealed on closer inspection.

A terracotta ceiling constructed using a traditional Spanish bovedilla system introduces rhythm and warmth while reducing concrete volume and construction waste. Timber floors and joinery in Douglas Fir are detailed as simple, sculptural elements.

Throughout, privacy, light and ventilation are carefully balanced. Brick screens upstairs limit overlooking while maintaining outlook, and large openings at ground level connect living spaces to courtyards and gardens.


The heritage restoration of the front of an eastern suburbs Woollahra heritage house by Muci Architects. New copper guttering and roofing and porters liquid bronze paint.
Old meets new in the front hallway. A traditional archway frames the view of a new steel portal into the extension at Clay House Sydney Heritage Restoration by Muci architects.
A view at the base of the stairwell in Clay House Sydney terrace renovation by Muci architects. There is a terracotta floor, timber stairs with a zig-zag bottom and cream bricks. Plus a baxter Miami sofa in the living room beyond.
in the stairwell at clay house Sydney terrace renovation by Muci architects. Looking toward kitchen with Noguchi floor lamp, terracotta tile floor with maxi-grout plus Dinesen timber stair and bridge above.
The kitchen at Clay House, the Sydney terrace renovation by Muci architects. It shows a concealed kitchen with pocket doors made in Dinesen Douglas fir. Terracotta floor and terracotta ceiling.
The kitchen at Clay House, the Sydney terrace renovation by Muci architects. It shows a concealed kitchen with pocket doors open and made in Dinesen Douglas fir. Terracotta floor and terracotta ceiling.
A detailed view of the timber window with hooks and stainless steel kitchen island in the Sydney terrace renovation by Muci architects
A close-up view of the Korean screens in the Sydney terrace renovation, Clay House, by Muci architects.
Atelier Franssens wall hung basin in orange colour with microcment bathroom wall in the Sydney terrace renovation, clay house by Muci architects.
Skylight detail in the lounge room of Sydney terrace renovation by Muci architects. Also featuring tiled plinth and flos ceramic lamp.
The skylights in the light well at Sydney terrace renovation, Clay House, by Muci architects. Light highlights texture of cream brick feature wall.
The main bedroom in the Sydney terrace renovation by Muci architects in woollahra. There is a Dinesen Douglas fir floor and teracotta tile bovedilla ceiling.
Atelier franssens column pedestal basin in the ensuite at Clay House Sydney terrace renovation by Muci architects
The bath with a view over rooftops at the woollahra renovation by Muci architects.
An eastern edition desk and jungle kwon wall light in the Sydney terrace architect renovation, clay house, by Muci architects.
An eastern edition desk Dinesen doors in the Sydney terrace architect renovation, clay house, by Muci architects.
Tiled outdoor table and tiled outdoor stools and built-in concrete seat with terracotta tiles with maxi-grout in Sydney terrace renovation by heritage architects Sydney Muci.
Tiled outdoor table and tiled outdoor stools and built-in concrete seat with terracotta tiles with maxi-grout in Sydney terrace renovation by heritage architects Sydney Muci.
an overall photo of the rear facade of Sydney terrace renovation by muci architects. The cream brick screens completely conceal the upper level windows and the courtyard below is terracotta tiles with max-grout.
A detail photo of the brick screen at the rear of the Sydney terrace renovation by Muci architects. cream brick screen creates a brick feature wall and privacy screen.
the rear laneway restoration in a heritage conservation area by Muci architects.
The rear elevation seen peeking out of the woollahra heritage conservation area context in the Clay House Sydney terrace renovation by Muci architects.



CREDITS

MUCI: Chris Mullaney, Steani Cilliers, Zac Ifield, Gizelle McKinnon
CLIENT / MATERIALS: LOHAS
BUILDER: Cumberland Building
ENGINEER: PMI Engineers
HERITAGE: Touring the Past
JOINERY: Kink & Studio Elliot
DOORS & WINDOWS: Shamrock Joinery
LANDSCAPE: Dangar Barin Smith

PUBLICATIONS

Est Living Issue 59, cover image and article, Earth Moves
Est Living, YouTube feature


MORE PROJECTS
Previous
Previous

Park House

Next
Next

Garden Bungalow